Lýsing eignar
Nes Fasteignasla kynnir til sölu Fjóluklett 22 310 Borgarnesi.
Um er að ræða grunn á sjávarlóð með glæsilegu útsýni yfir Borgarfjörð á vinsælum stað í Borgarnesi.
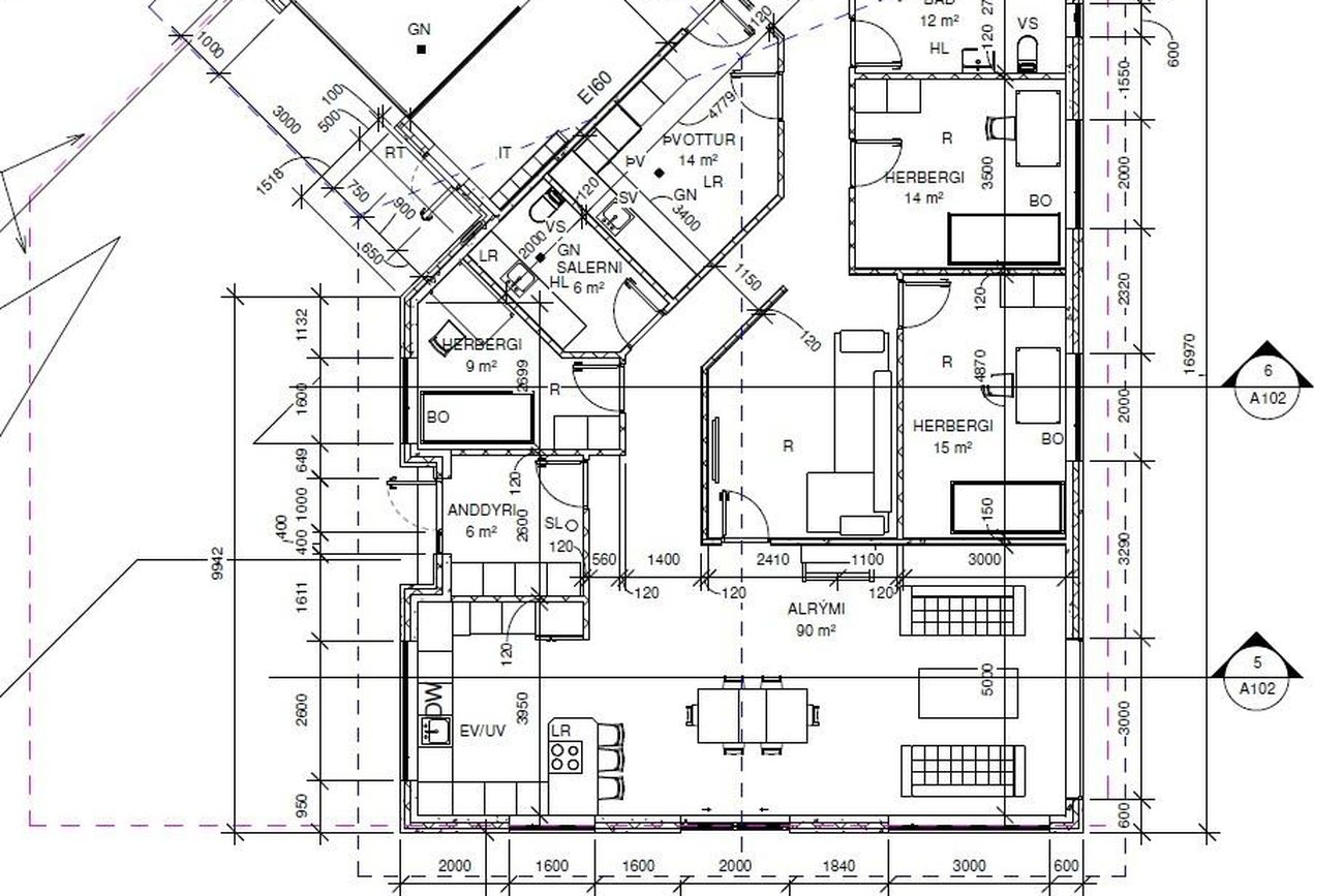
Á lóðinni eru eru steyptir sökklar af 244,3 fm einbýlishúsi á einni hæð en þar af er bílskúr 50 fm.
Gatnagerðargjöld eru greidd og teikningar samþykktar af 244.3 fm húsi.
Seljandi áformaði stækkun hússins og fyrir liggja teikningar af stækkuðu húsi með breyttu skipulagi og er þá stærð hússins sem byggt yrði úr steinsteyptum einingum 271,0 fm, þar af er bílskúr 50,0fm.
Nánari upplýsingar veitir Þórarinn Halldór Óðinsson Lögg. fasteignasali, í síma 497-0040 eða 865-0350, tölvupóstur thorarinn@fastnes.is.
Eigindi eignar
| Tegund | Einbýli |
| Verð | 23.500.000 ISK |
| Áhvílandi | 0 ISK |
| Fasteignamat | 10.800.000 ISK |
| Brunabótamat | 0 ISK |
| Stærð | 244.3 fermetrar |
| Herbergi | 5 |
| Svefnherbergi | 0 |
| Baðherbergi | 0 |
| Byggingarár | 0 |
| Lyfta | Nei |
| Bílskúr | Já |
| Garður | Nei |
| Skráð | 15.07.2025 |












